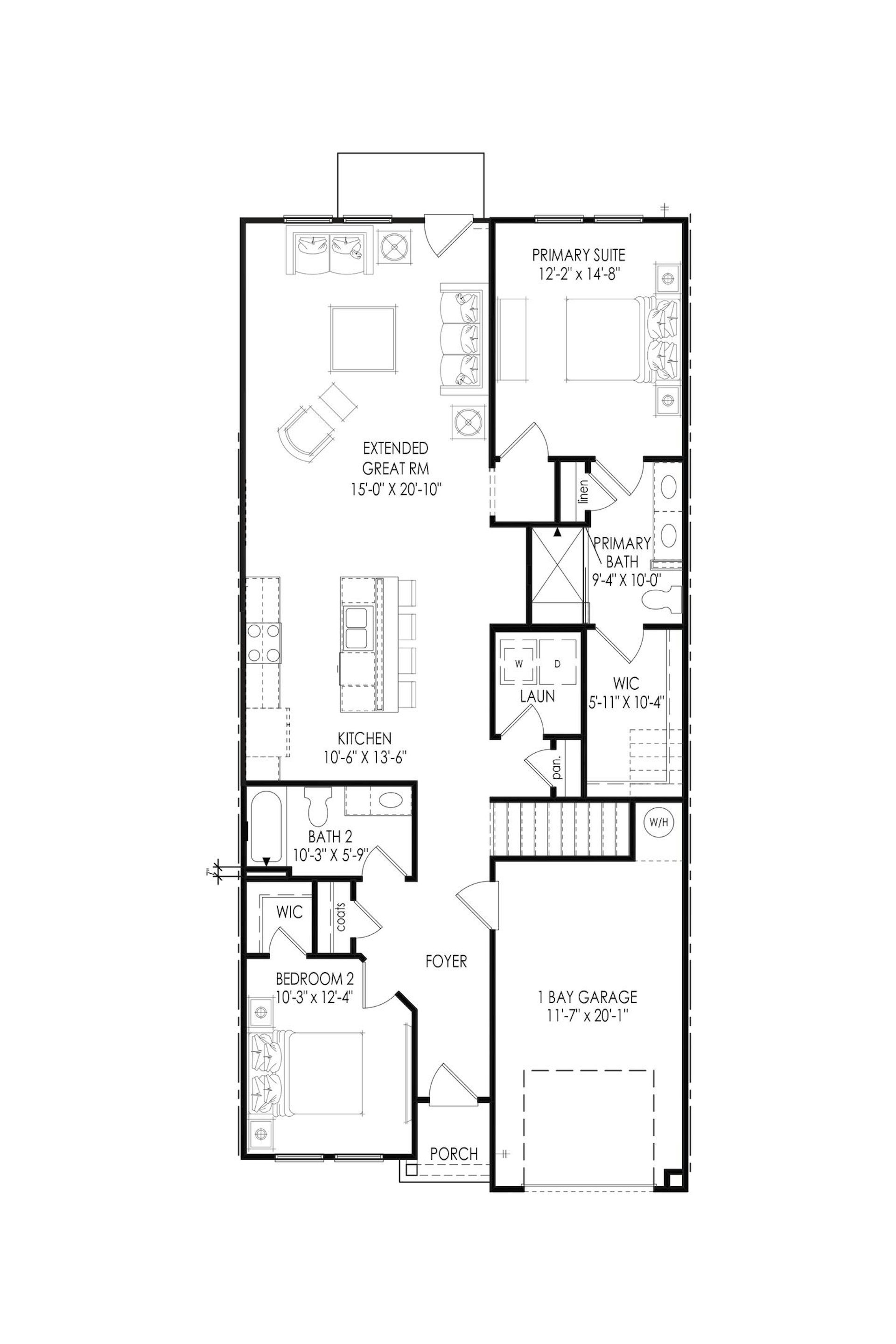
The Mimosa
- Homesite: 5
- Move-In: Estimated December
2
2
1
1,674
$358,823
$10K IN FLEX CASH NEW PRICE: $348,823
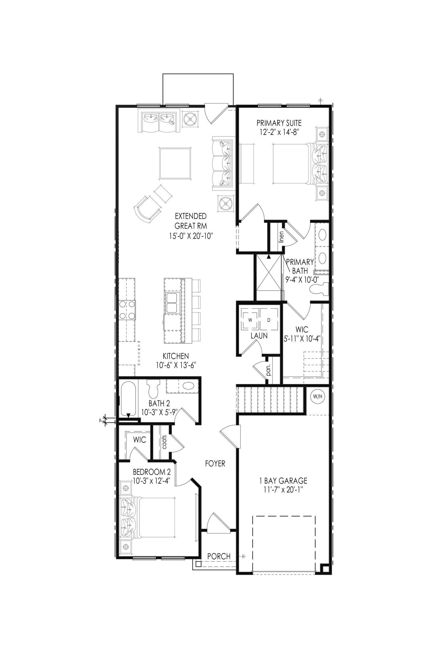
Townhome Features Design with Extended Great Room that Opens to Dining and Island Kitchen
Main Level Offers a Guest Bedroom & Full Bath, Island Kitchen with Pantry, and Laundry Room
Private First Floor Primary Suite with Walk-in Shower with Bench Seat & Walk-in Closet
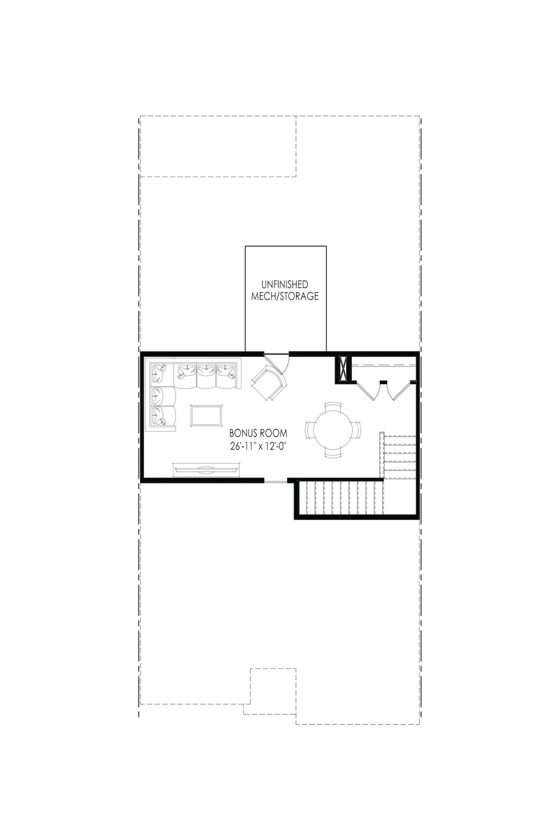
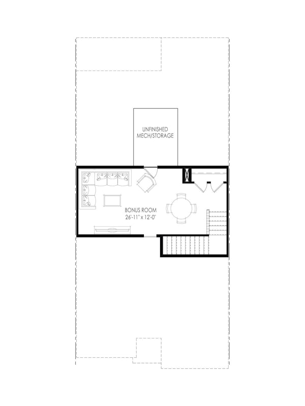
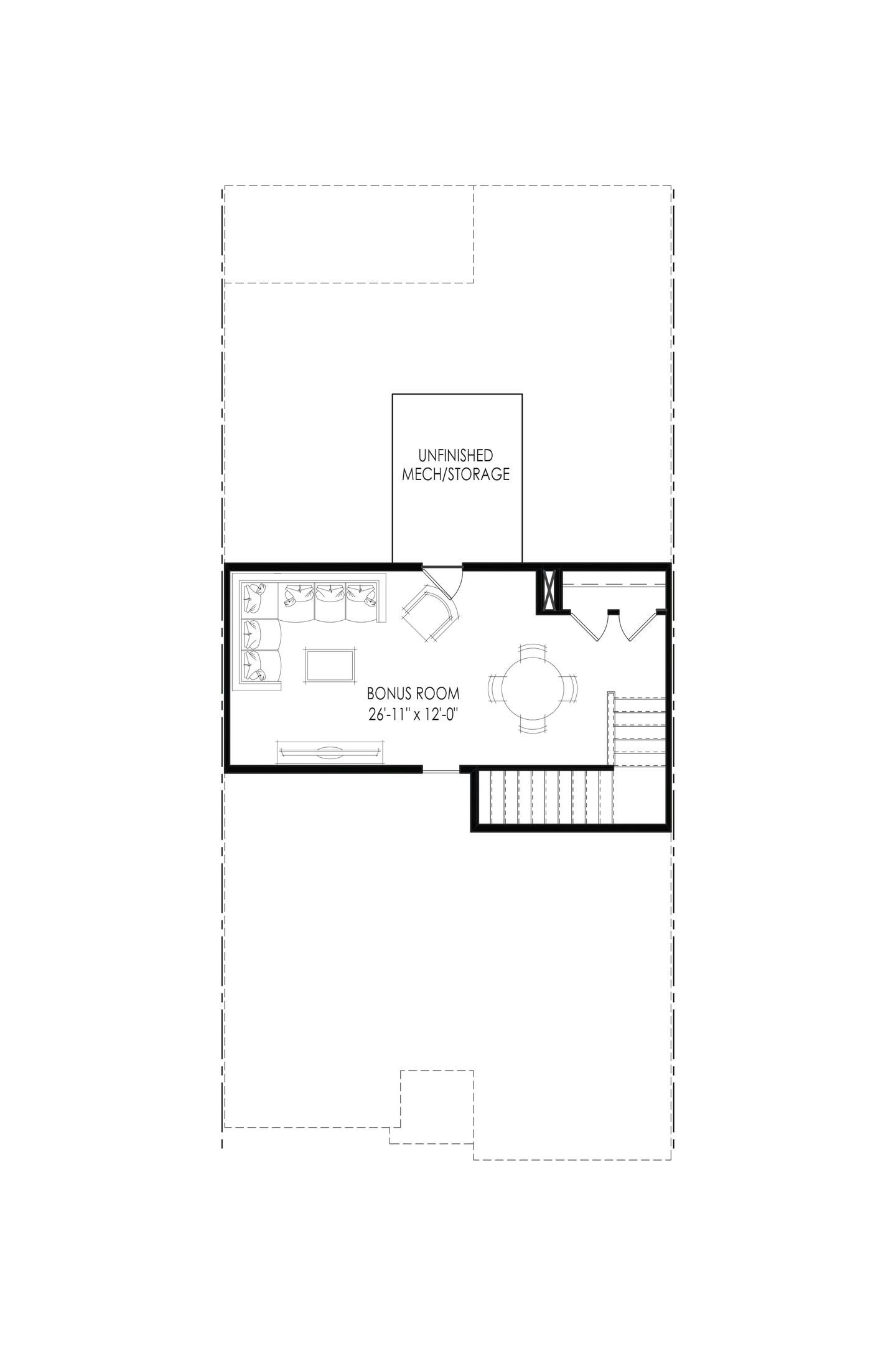
Spacious Second Floor Bonus Room Accessed by Permanent Stairs Perfect for Retreat or Extra Storage
Beautiful 9’ Ceilings Throughout with Universal Design Features for Comfort & Accessibility
Sales Office Information & Hours
Office Hours
Now Selling!
Monday - Saturday: 10am to 5pm
Sunday: 1pm to 5pm
 
 
 
